Сложность ремонта коробки передач на автомобиле Москвич-2141, главная передача которого выполнена с коническими шестернями, заключается в определении монтажного размера и регулировке зацепления шестерен.
Монтажный размер С (рис. 178) — расстояние от торца ведущей шестерни до оси дифференциала — теоретически равен 53,4 мм. Однако при подборе пары на контрольном станке для обеспечения правильного контакта на зубьях и получения при этом бесшумной работы редуктора ведомую и ведущую шестерни передвигают вдоль их осей. Таким образом нарушается теоретический монтажный размер и вносится его первая поправка (отклонение).

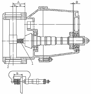
Рис. 178. Установка ведущей шестерни при определении монтажного размера С: 1 — гайка, 2 — ведомая шестерня V передачи или технологическая втулка, 3 — пластина крепления подшипников, 4 — винт, 5 — подсобранная ведущая шестерня главной передачи, 6 — картеры в сборе, 7 — прокладка.
Кроме того, высота головки ведущей шестерни бывает различной (в пределах допуска), и поэтому после замера ее номинальной высоты вносится вторая поправка. Сумма этих двух поправок записывается электрографом на торцах ведущей и ведомой шестерен как общая поправка к теоретическому монтажному размеру С.
Если у числа поправки стоит знак «+», то ее нужно вычесть из размера 53,4 мм, если знак «—, то прибавить. Полученный результат будет номинальным монтажным размером данной пары. Допустимое отклонение может быть 0,02 до ...0,04 мм.
Боковой зазор между зубьями пары сопрягаемых ведущей и ведомой шестерен необходим из-за температурных изменений, возникающих в процессе работы узла, для правильного расположения пятна контакта зубьев и вследствие возникновения погрешностей геометрических параметров при обработке зубьев шестерен. Для шестерен главной передачи боковой зазор, замеренный по нормали к профилю зуба ведомой шестерни, должен быть 0,08...0,17 мм. Однако для каждой отдельно взятой пары шестерен разница между величинами наибольшего и наименьшего зазоров не должна превышать 0,06 мм. Разность бокового зазора двух рядом расположенных зубьев должна быть не более 0,03 мм.
Для замера монтажного размера С подсобранную ведущую шестерню главной передачи вставить в собранные вместе с прокладкой картеры главной передачи и коробки передач (см. рис. 178), установить на ведущую шестерню внутренние полукольца заднего подшипника и, используя ведомую шестерню V передачи или технологическую втулку и шайбу, затянуть гайку ведущей шестерни. Момент затяжки 140...160 Нּм (рис. 179).

Рис. 179. Затяжка гайки ведущей шестерни при определении монтажного размера С: 1 — динамометрический ключ, 2 — специальный ключ для стопорения шестерни.
Используя контрольную оправку 2 (рис. 180), с помощью микрометрической стойки 1, перемещаемой по торцу ведущей шестерни, замерить расстояние b до оправки. При отсутствии микрометрической стойки размер b можно замерить мерными плитками.

Рис. 180. Определение монтажного размера шестерни главной передачи: 1 — микрометрическая стойка, 2 — оправка.
Из монтажного размера А, представляющего сумму размера b (зафиксированного микрометрической стойкой и замеренного микрометром) и половины размера диаметра контрольной оправки а, нужно вычесть номинальный монтажный размер пары С (см. рис. 178). Разность двух размеров А—С и будет составлять толщину Е необходимого набора регулировочных шайб, которые следует установить на ведущую шестерню главной передачи между шестерней IV передачи и внутренним полукольцом заднего подшипника.
Монтажный размер С ведущей шестерни (с учетом поправки) обеспечивается набором регулировочных шайб толщиной 1,5; 1,85; 1,9; 1,95; 2; 2,05; 2;1; 2,15 мм. Количество шайб должно быть не более двух в одном наборе.
При отсутствии специальной оправки и микрометрической стойки толщина набора регулировочных шайб может быть определена по формуле (см. рис. 178): Е = A — [D + (Δ + В)], где А — расстояние от оси подшипников дифференциала до переднего торца внутреннего кольца заднего подшипника вторичного вала; Δ — поправка на монтажный размер со знаком «+» или «—»; D — теоретический монтажный размер, равный 53,4 мм; В — размер от переднего торца ведущей шестерни главной передачи до упорного торца шестерни IV передачи.
Размер от оси дифференциала до переднего торца внутреннего кольца заднего подшипника следует замерять при соединенных картерах и установленной между ними прокладке.
После установки ведомой шестерни и дифференциала в картер и сборки коробки передач необходимо отрегулироваь боковой зазор в шестернях главной передачи и преднатяг подшипников дифференциала. Для этого свободным (без усилия) перемещением регулировочных гаек надо установить боковой зазор между зубьями шестерен 0,1...0,15 мм, при этом обе гайки должны касаться наружных колец подшипников; затянуть одновременно обе гайки с поворотом их на 60...750. После затяжки регулировочных гаек боковой зазор не должен изменяться. Боковой зазор на любой паре зубьев шестерен не должен быть менее 0,08 мм и более 0,17 мм. Нарастание зазора должно быть плавным, разность бокового зазора рядом расположенных зубьев не должна быть более 0,03 мм. Наибольшая разность бокового зазора для одной пары шестерен не должна превышать 0,06 мм.
Боковой зазор проверяется вращательным покачиванием в обе стороны ведомой шестерни, при этом ножка индикатора должна опираться на зуб одного наружного торца шестерни перпендикулярно к боковой поверхности зуба (см. рис. 181). При проверке бокового зазора ведущая шестерня должна быть заблокирована специальным кронштейном.

Рис. 181. Проверка бокового зазора в зацеплении зубьев ведущей и ведомой шестерен главной передачи при помощи индикатора.
Преднатяг подшипников дифференциала после регулировки бокового зазора в шестернях главной передачи должен быть в пределах 1,47... 2,45 Нּм. Проверку преднатяга подшипников производят проворачиванием первичного вала при включенной первой передаче.
После выполнения регулировочных работ следует установить редуктор привода спидометра, стопор регулировочных гаек ведомой шестерни, прикрепив его болтами к картеру главной передачи, и легкими ударами молотка вставить в цапфу коробки дифференциала фланцы полуосей с надетыми на них кольцами.